Maastricht – Scharnerweg 161
Overzicht
Omschrijving
Op een centrale en goed bereikbare locatie in Maastricht ligt dit volledige pand met verrassend veel ruimte en mogelijkheden. De woonverdieping bevindt zich op de eerste etage en biedt een solide basis voor wie op zoek is naar een woning die geheel naar eigen wens gemoderniseerd en gerenoveerd kan worden. De woning beschikt over maar…
Kenmerken
- Koopprijs
- € 595.000,- k.k.
- Status
- Beschikbaar
- Bouwjaar
- 1930
- Soorten
- Carport, Geen garage
- Oppervlakte
- 232 m2
Kenmerken
Overdracht
- Koopprijs
- € 595.000,- k.k.
- Status
- Beschikbaar
Bouw
- Objecttype
- Woonhuis
- Permanente bewoning
- Ja
- Bouwjaar
- 1930
- Bouwvorm
- Bestaande bouw
- Dak type
- Zadeldak
- Dak materialen
- Pannen
Locatie
- Adres
- Scharnerweg 161
- Plaats
- Maastricht
- Land
- Nederland
Oppervlakte en inhoud
- Woonoppervlakte
- 232 m2
- Inhoud
- 810 m3
- Perceel oppervlakte
- 551 m2
Indeling
- Verdiepingen
- 5
- Aantal kamers
- 7
- Aantal slaapkamers
- 4
- Aantal badkamers
- 2
Buitenruimte
- Achterom
- Nee
Onderhoud
- Onderhoud binnen
- Redelijk
- Onderhoud buiten
- Redelijk tot goed
Overig
- Huidig gebruik
- Woonruimte
- Huidige bestemming
- Woonruimte
Omschrijving
Op een centrale en goed bereikbare locatie in Maastricht ligt dit volledige pand met verrassend veel ruimte en mogelijkheden. De woonverdieping bevindt zich op de eerste etage en biedt een solide basis voor wie op zoek is naar een woning die geheel naar eigen wens gemoderniseerd en gerenoveerd kan worden.
De woning beschikt over maar liefst vier ruime slaapkamers en twee badkamers, wat het object uitermate geschikt maakt voor grotere gezinnen of voor wie extra ruimte wenst voor werken aan huis of hobby’s. De indeling biedt volop kansen om een eigentijdse en comfortabele woonomgeving te creëren.
Een bijzonder pluspunt is de royale en verrassend diepe tuin met buitenverblijf, waar u in alle rust kunt genieten van het buitenleven. Daarnaast is er parkeergelegenheid voor ca. 3 auto’s op eigen terrein, onder de onderdoorgang welke bereikbaar is via de poort aan de voorzijde, een zeldzaamheid op deze locatie. Daarbij is er de mogelijkheid om een achteringang te realiseren.
Begane grond:
U betreedt de woning via het karakteristiek voorportaal met glas in lood deur en fraaie tegelvloer, die toegang biedt tot de trapopgang naar de verdieping, een praktische bergruimte met witgoedaansluiting en de tuin met overdekte parkeerplaatsen.
Eerste verdieping:
Via de houten trap bereikt u de eerste verdieping. Hier bevinden zich een gesloten keuken (te renoveren), een separaat toilet en een royale leefruimte.
Aan de voorzijde zorgt het karakteristieke erkerraam voor een prettige lichtinval en vormt dit de ideale plek voor de woonkamer. Aan de achterzijde heeft u toegang tot het terras met uitzicht op de tuin. De leefruimte kenmerkt zich door hoge plafonds en een houten vloer. De verschillende ruimtes staan met elkaar in open verbinding, maar kunnen desgewenst worden afgesloten middels authentieke schuifdeuren. Tevens is het terras vanuit de keuken bereikbaar.
Tweede verdieping:
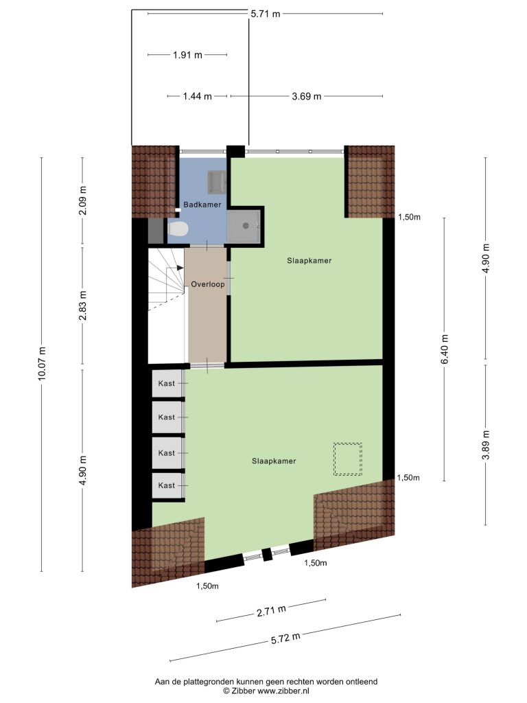
De overloop op de tweede verdieping biedt toegang tot twee slaapkamers en de ruimte voor een badkamer.De slaapkamer aan de voorzijde (ca. 26m²) biedt voldoende ruimte voor een royale kastenwand, waardoor er geen extra kamer nodig is voor garderobe. De tweede slaapkamer (ca. 16m²) is voorzien van een wastafel. Beide kamers beschikken over een praktische muurkast en zijn afgewerkt met een parketvloer.
De voormalige badkamer is reeds gestript en klaar voor renovatie. Dit biedt de nieuwe eigenaar de mogelijkheid om deze ruimte volledig naar eigen smaak en wens in te richten.
Derde verdieping:
Ook de derde verdieping beschikt over twee volwaardige slaapkamers. De slaapkamer aan de voorzijde (ca. 22m²) en de slaapkamer aan de achterzijde (ca. 17m²) hebben beide een uniek plafond waarbij de contouren van de dakconstructie zichtbaar zijn. De kamer aan de voorzijde is voorzien van een Velux dakraam, terwijl de achterzijde beschikt over een dakkapel. Hierdoor genieten beide kamers van een aangename hoeveelheid natuurlijk licht.
Op de derde verdieping bevindt zich tevens een volledig betegelde badkamer, voorzien van een toilet, wastafel en douche.
Exterieur:
Via de grote poort aan de voorzijde bereikt u de onderdoorgang richting de tuin. Deze is eveneens toegankelijk via een deur in de hal van de woning. De onderdoorgang leent zich uitstekend als parkeerplaats voor auto’s en biedt daarnaast ruimte voor het stallen van fietsen.
Aan het einde van het betegelde pad treft u de verrassend ruime, parkachtige tuin: een groene oase met een buitenverblijf waar u ondanks de centrale ligging geen verkeers- of stadsgeluiden hoort. De tuin is deels voorzien van bestrating en deels van gazon, wat het een ideale plek maakt voor zowel ontspanning als spelende kinderen. Verder is de tuin rijkelijk beplant met diverse bomen, struiken en planten, wat zorgt voor veel privacy en een natuurlijke uitstraling.
Het buitenverblijf van ca. 25m² vormt een waardevolle toevoeging aan het geheel. Hier vindt u onder andere een toilet en voldoende ruimte voor het creëren van een comfortabele zithoek. Tevens bestaat de mogelijkheid om een compact keukenblok te realiseren, waardoor u optimaal van het buitenleven kunt genieten. Voor een korter verblijf buiten, bijvoorbeeld tijdens een zomerse maaltijd, biedt het balkon grenzend aan de leefruimte een fijne plek.
Kelder:
Onder de woning bevindt zich een praktische kelder van ca. 13m², ideaal te gebruiken als bergruimte.
Bijzonderheden:
– verschillende authentieke jaren ‘30 elementen;
– naar eigen wens te renoveren woning met een solide basis;
– de woning is in 2006 verbouwd waarbij de zolder is verbouwd tot een volwaardige bovenverdieping inclusief dakisolatie;
– er is een bouwkundig rapport beschikbaar op aanvraag;
– parkeergelegenheid op eigen terrein;
– mogelijkheid om een achteringang voor auto’s te realiseren (dit is notarieel vastgelegd maar nog niet gerealiseerd);
– multifunctioneel buitenverblijf en verrassend ruime tuin.





















































